Kirke Eskilstrup Station (Kek) [1901-1991], en artikel om Kirke Eskilstrup Station
Kirke Eskilstrup Station og Byens Udvikling omkring Jernbanen
Kirke Eskilstrup Station blev anlagt i den gamle landsby, der oprindeligt var centreret omkring kirken. Ved indgangen til 1900-tallet fandtes der fem gårde, en halv snes huse og en smedje i området, og befolkningstallet lå på omkring 85 indbyggere. Da Høng-Tølløse Jernbanen åbnede (i dag ofte forkortet HTJ), fik Kirke Eskilstrup en vigtig station, hvilket førte til en betydelig bymæssig udvikling mod øst i retning af de nye faciliteter ved jernbanen. Her opstod et mindre centrum med hotel og rejselade samt en købmandsforretning fra 1901. Efterhånden åbnede adskillige forretninger i nærheden af stationen, og købmand S. Dalhoff Jensen opførte i 1927 pakhuse langs stationens læssevej på banens østside, over for stationsbygningen. Udviklingen inden for både handel og service voksede, og i 1932 anlagde Soderup-Eskilstrup Kommune et alderdomshjem i byen. Dette hjem blev senere overtaget af Sejergaardsskolen i Tølløse, efter at det var blevet lukket. Kirke Eskilstrup fungerede også som kommunecenter: Indtil kommunesammenlægningen i 1970 var der kommunekontor for Soderup-Eskildstrup Kommune placeret i byen.Bymæssig Vækst og Ændringer i Infrastrukturen
Efter 1960 fik Kirke Eskilstrup et større villakvarter øst for banen. I forbindelse med denne nye bebyggelse blev de oprindelige pakhuse ved læssevejen nedrevet sidst i 1960'erne, og en del af læssevejen blev inddraget, så Platanvej kunne føres helt ud til Borgergade. Netop ved Borgergade kører jernbanen umiddelbart forbi stationen. Interessant nok var jernbaneoverkørslen her den første på HTJ, der i 1926 blev udstyret med blinklys – en markant sikkerhedsmæssig opgradering efter datidens standarder.I dag har Kirke Eskilstrup omkring 650 indbyggere, men byens forretningsliv er skrumpet i takt med, at mange indkøb foregår i større handelscentre eller i større nærliggende byer. I 2001 fandtes der kun to butikker i egentlig forstand, nemlig et minimarked med postbutik og en gartner. Dertil var der en entreprenørvirksomhed, et autoværksted og nogle få håndværksmestre. Denne udvikling er typisk for mange små stationsbyer, hvor man over tid ser en omskiftning fra en levende butiksgade til et mere begrænset erhvervsliv.
Stationens Indretning og Postbetjening
Stationsbygningen i Kirke Eskilstrup blev opført en smule anderledes end for eksempel i Nyrup, Skellebjerg og Kulby, idet der skulle være plads til et postværelse til landpostbudet, som havde udgangspunkt på stationen. Dette indebar, at loggiaen (en form for åben adgangspassage) var betydeligt mindre end ved de andre stationer på strækningen. Fra 1. januar 1902 passede stationens personale ikke alene jernbanens forretninger, men også brevsamlingsstedet, der blev oprettet samme dag. I 1907 fik Kirke Eskilstrup status som jernbanepostekspedition, så post og jernbanedrift var flettet tæt sammen på dette sted.I de første mange år var der en decideret stationsmester i Kirke Eskilstrup, men fra 1. maj 1951 overgik stationen til ekspeditricebetjening. I praksis betød det, at togpersonalet selv tog sig af sporskifter og rangering, når der skulle ske krydsninger eller lignende jernbanemæssige procedurer. Til sidst, den 31. december 1991, lukkede både jernbane- og postekspeditionen. Herefter omdannedes Kirke Eskilstrup til et trinbræt med fjernbetjent krydsningsfunktion, og postekspeditionen flyttede til en nærliggende købmandshandel. Selve stationsbygningen ejes stadig af HTJ, men lejligheden i bygningen er udlejet.
Forbedrede Vilkår for Landpostbude og Moderniseringer
Da stationen både rummede jernbanefunktioner og postvæsen, kom der på et tidspunkt behov for bedre arbejdsforhold for landpostbudene. I 1944 anmodede Post- og Telegrafvæsenet banens ledelse om at forbedre disse forhold. De to landpostbude, som udgik fra Kirke Eskilstrup, havde kun omkring otte kvadratmeter at sortere post på i ekspeditionslokalet, og publikum havde samtidig adgang til det samme rum. Det gav både pladsmangel og sikkerhedsproblemer. Samtidig måtte stationsbestyreren forlade lokalet, når der skulle sælges billetter, eftersom billetsalget foregik i et tilstødende værelse, stationens spisestue, hvor der var en rude til ventesalen.Først i 1953 skete der en større ombygning, hvor man inddrog loggiaen for at kunne indrette en særlig budstue. Indlevering af post foregik så gennem en luge til ventesalen. Samtidig fik lejligheden på første sal indlagt toilet, hvilket var et væsentligt fremskridt for stationens beboelse. Disse moderniseringer holdt stationen kørende frem til 1987. Ganske vist fik passagererne forbedrede toiletforhold i 1977-78 i samarbejde med Tølløse Kommune, men det var postvæsenets behov, der i vid udstrækning fortsatte med at drive ombygningerne. I 1987 foretog man en ny og større ombygning, hvor en del af den lukkede gårdsplads blev inddraget for at skabe en større budstue. I forbindelse med ombygningen fik stationsbygningen nyt tegltag og en gennemgribende istandsættelse.
Sidespor, Krydsningsspor og Tekniske Opgraderinger
Kirke Eskilstrup havde kun ét sidespor, beliggende ved læssevejen over for stationsbygningen. I 1978 udskiftede man de gamle sporskifter med brugte sporskifter i profilen 27,55 kg/m., alle forsynet med fjedrende tunger for bedre driftssikkerhed. Der blev samtidig flyttet og etableret et krydsningsspor længere væk fra hovedsporet, og en midlertidig øperron måtte anbringes i denne ombygningsperiode. Stationen fik et sikringsanlæg, der blev koblet til banens fjernstyringssystem i Dianalund, så man kunne betjene sporskifterne elektrisk på afstand.I 1984 ilagde man nye sporskifter i 45 kg/m. profil, som yderligere forstærkede anlægget. I 1990 flyttede man sporskiftet i stationens nordlige ende længere mod Tølløse, og der blev anlagt en moderne asfalteret perron mellem de to togvejsspor. Året efter (1991) istandsatte man pakhuset og tilføjede et halvtag til cykelparkering. Pakhuset bliver i dag brugt som lager for banetjenesten.
Filmen "Charles Tante" og Stationen som Kulisse
Kirke Eskilstrup Station har også haft en rolle i dansk filmhistorie. I filmen "Charles tante" fra 1959 ses Dirch Passer, Ove Sprogøe og Ebbe Langberg stå af på stationen, hvorefter Keld Markuslund henter dem. I filmen bærer stationen navnet Krogerup Station, men scenerne er faktisk optaget i Kirke Eskilstrup. Denne detalje sætter stationen på det kulturelle Danmarkskort, om end på en beskeden måde.Moderne Kirke Eskilstrup og Byens Status
I dag er Kirke Eskilstrup en lille stationsby med 663 indbyggere (2024), beliggende i Kirke Eskilstrup Sogn, seks kilometer syd for Tølløse, 18 kilometer syd for Holbæk og 20 kilometer nord for Ringsted. Det er en del af Holbæk Kommune i Region Sjælland. Selve byen har sine rødder i en gammel landsbykultur. Ifølge optegnelser fra 1682 talte Kirke Eskilstrup 16 gårde, 4 huse med jord og 7 huse uden jord, og det dyrkede areal var dengang 418,6 tønder land, skyldigt 100,21 tønder hartkorn. Det var dog anlæggelsen af stationen syd for den eksisterende landsby, som fik byen til at vokse mod øst, da jernbanen kom til. Det førte til en naturlig forskydning af bylivet, så Kirke Eskilstrup i dag er kendt som en sammensmeltning af ældre landsbymiljø og moderne stationsby.Historiske Rødder og Mellemkrigstiden
Kirke Eskilstrups udvikling i mellemkrigstiden følger et mønster, man genkender fra mange små danske byer. Efter Første Verdenskrig opstod et blomstrende handelsliv, ofte i forbindelse med stationen. Butikker, håndværksmestre og små industrier havde gavn af let adgang til transport, og jernbanen tjente som en vigtig forbindelse til både Holbæk, Tølløse og Ringsted. Gennem 1920'erne og 1930'erne voksede befolkningen langsomt, og kommunal infrastruktur som alderdomshjem og kommunekontor etableredes. Adskillige hændelser, herunder anmodninger fra postvæsenet om bedre faciliteter, viser, at stationen ofte var i centrum for de lokale anliggender. Byen var dog betydeligt mindre end for eksempel Tølløse, men tilstrækkelig stor til at opretholde en hotel-lignende funktion med rejselade og en række mindre forretninger.Tiden Efter Anden Verdenskrig
Efter Anden Verdenskrig stabiliserede befolkningstallet sig, men Kirke Eskilstrup fastholdt i en længere periode sin status som et samlingspunkt i området, hvor folk kom for at handle, benytte posttjenesterne eller tage toget videre. Den generelle industrialisering og urbanisering i Danmark betød dog, at Kirke Eskilstrup, ligesom mange andre stationsbyer, gradvist mistede en del af sit gamle forretningsliv. Butikker forsvandt eller flyttede tættere på større byer med et større kundegrundlag. Imens skabte et nyopført villakvarter et befolkningsmæssigt løft øst for banen, men det ændrede ikke byens samlede kommercielle tiltrækningskraft i samme omfang som tidligere.Fra Aktiv Station til Fjernbetjent Krydsningspunkt
Den afgørende forandring for Kirke Eskilstrups jernbanestatus skete ved årsskiftet 1991/92, da man lukkede jernbane- og postekspeditionen. Dette markerede afslutningen på en periode, hvor stationen havde haft en central funktion for passagerer, gods og brevforsendelse. Overgangen til at være et trinbræt med fjernbetjent krydsningsstation betød, at stationen i praksis ikke havde fast personale, og at passagerer skulle betjene sig selv. Sporskifter og signaler styres nu fra fjernstyringscentralen i Dianalund, og personalet i toget tager sig af eventuelle manøvrer ved krydsning, hvis det er nødvendigt. Den fysiske station ejes dog stadig af HTJ, og lejlighedsvis bliver dele af bygningen brugt til administrative formål eller udlejet til private.Som en afspejling af nye transportmønstre og effektivisering i jernbanedriften var dette skift ikke enestående for Kirke Eskilstrup. Mange mindre danske stationsbyer oplevede lignende ændringer fra 1980'erne og frem, især på privatbaner, hvor passagertal og godstransport ikke altid stod mål med omkostningerne ved at have stationer bemandet. For byboerne i Kirke Eskilstrup er det dog stadig en fordel at have adgang til toget, om end i en mere selvbetjent form. Toget giver forbindelse til Tølløse i nord, Holbæk længere mod nordvest og Ringsted mod syd.
Stationens Arkitektoniske Træk og Senere Forbedringer
Arkitektonisk set ligner Kirke Eskilstrup Station i store træk de andre HTJ-stationer, opført omkring århundredeskiftet, men med den særlige tilføjelse, at loggiaen var formindsket for at give plads til et postværelse. Dette kunne tyde på, at postvæsenet havde særlige krav til netop denne station, måske på grund af den forventede mængde post fra landdistrikterne omkring Soderup-Eskilstrup. Stationen er gennem årene blevet udbygget i flere omgange, senest i 1987, hvor man inddrog dele af gårdspladsen for at få en større budstue. Undervejs lagde man nyt tegltag, moderniserede interiøret og bragte passagerfaciliteterne nogenlunde up to date i relation til 1970'ernes og 1980'ernes standarder.For passagerernes skyld renoverede man også toiletforholdene i 1977-78 i samarbejde med Tølløse Kommune. I 1990 flyttede man sporskiftet mod Tølløse, og der kom en ny asfalteret mellemperron, som gjorde det mere bekvemt at skifte mellem spor. Dette var en del af en større ombygning i 1980'erne, der inkluderede opdateringer af sikringsanlæg og fjernstyring. Disse tiltag viser, at selv mens stationen gik i retning af at blive ubemandet, var der stadig fokus på sikkerhed og en vis komfort for de rejsende.
Erhverv og Hverdagsliv i 2000'erne
I løbet af 1990'erne og 2000'erne har Kirke Eskilstrup gradvist mistet sine sidste traditionelle erhverv og forretninger. I 2001 rapporteredes kun om to egentlige butikker – et mindre supermarked med postbutik og en gartner – samt nogle få håndværksvirksomheder. Dette er ikke usædvanligt for en by af denne størrelse. Folk i Kirke Eskilstrup pendler ofte til nærliggende byer, hvor de har arbejde, og køber tit også ind dér på vejen hjem. Jernbanen, der før var byens hovedpulsåre for både rejsende og post, fungerer nu mest for de pendlere, der skal nordpå mod Tølløse/Holbæk eller sydpå mod Ringsted. Samtidig har privatbilismen overtaget meget af den transport, man tidligere ville have klaret med toget.Kirke Eskilstrup i Nutidig Samfundssammenhæng
Selvom Kirke Eskilstrup i dag er en forholdsvis lille by, afspejler dens udvikling de seneste 120 år meget af den generelle danmarkshistorie for stationsbyer. Først en etablering omkring 1900 med nye forretningsmuligheder og tilflytning, senere en periode med livlig aktivitet, post- og godsforsendelser og en betydelig lokal identitet bundet til jernbanen. Derefter kommer en gradvis ændring, hvor stationen nedgraderes, men hvor selve byen overlever og endda får ny bebyggelse i form af parcelhuskvarterer. Byens synlige spor af industri eller større erhverv er få, og forretningslivet lever i skyggen af større handelsområder, men de fleste huse og veje vidner om en jernbaneæra, som formede byens placering og udstrækning.Filmiske Spor og Fremtidige Perspektiver
At Kirke Eskilstrup Station var kulisse for scenerne i "Charles tante" fra 1959, giver byen en lille fodnote i dansk populærkultur. For de lokale kan det være en sjov påmindelse om stationens tidligere rolle som travlt ankomststed for togpassagerer. Ligeledes kan man i fremtiden forestille sig, at Kirke Eskilstrups stationsmiljø kunne være en potentiel turistattraktion for jernbaneinteresserede eller for folk, der ønsker at opleve en fortsat aktiv privatbane i en landlig kontekst.Om stationen en dag bliver helt nedlagt, eller om der sker en renæssance for lokalbaner, er svært at spå om. I en tid, hvor klimabevidsthed og grøn transport er i fokus, kan lokalbaner få fornyet opmærksomhed som alternativer til bilpendling. Omvendt er passagergrundlaget for små byer som Kirke Eskilstrup ofte for spinkelt til at retfærdiggøre nye investeringer, medmindre der kommer tilskud fra stat eller region. Under alle omstændigheder står Kirke Eskilstrup i dag som et eksempel på en tidligere station, der har gennemlevet den fulde omstilling fra bemandet knudepunkt til ubemandet trinbræt.
Samlet Perspektiv på Kirke Eskilstrup Station
Kirke Eskilstrup Station begyndte som et vigtigt bindeled for en lille landsby, der kun havde 85 indbyggere omkring 1900, men som gennem jernbanen voksede betydeligt og tiltrak handel, service og kommunale funktioner. Fra hotel, købmand og pakhuse langs læssevejen, til en større infrastruktur med læssespor og krydsningsspor, var stationen i mange år en travl brik i HTJ's netværk. Postvæsenet integreredes tæt med stationen, hvilket gjorde Kirke Eskilstrup til et knudepunkt for landpostbude, der hver dag bragte breve og pakker ud til oplandet.Efterhånden som bilisme, centralisering og skiftende økonomiske vilkår gjorde deres indtog, oplevede stationen en langsom reduktion i funktioner. Først røg godstrafikken, så de bemandede ekspeditioner, og til sidst stod kun en fjernbetjent krydsningsstation tilbage. Mens forretningslivet svandt ind, er Kirke Eskilstrup i dag et roligt lokalsamfund, hvor man stadig har glæde af togforbindelsen, om end i en mere begrænset form. Samtidig vidner stationen – nu forvandlet til trinbræt – og de omkringliggende gader om en fortid, hvor jernbanen for alvor drev udviklingen i området.
Links til supplerende læsning:
da.wikipedia.org (Beskrivelse af Høng-Tølløse Jernbane )Stamdata for Kirke Eskilstrup Station [1901-1991]
| Byggeår | 1900 |
| Åbnet | 1901.12.22 |
| Nedlagt | 1991.12.31 |
| Status | Eksisterer stadig |
| Arkitekt | Heinrich Wenck |
| Adresse | Stationsvej 4A, 4360 Kirke Eskilstrup |
| Stednavneforkortelse | Kek |
| Højdeplacering over havet | 46,0 meter |
| GPS koordinater | 55.574054,11.765040 |
Oversigt over andre stationer fra Kirke Eskilstrup
| Foto | Stationens navn | Beskrivelse |
|---|---|---|
| Kirke Eskilstrup Trinbræt (Kek) | Kirke Eskilstrup Trinbræt og Byens Historiske VækstKirke Esk... | |
| Kirke Eskilstrup Station (Kek) [1901-1991] | Kirke Eskilstrup Station og Byens Udvikling omkring Jernbane... |
BBR Data for Kirke Eskilstrup Station [1901-1991]BBR DATA fra Danmarks Adressers Web API (DAWA), som Styrelsen for Dataforsyning og Effektivisering (SDFE) har ansvaret for.BBR DATA hentet: 2024-01-02 19:52:26 | |
| BBR Højde over havet | 46,0 meter |
| BBR GPS koordinater | 55.57404417,11.76496056 |
| BBR Byggeår eller konverteringsår | 1900 |
| BBR Seneste ombygning | 1980 |
| BBR Bebygget areal i alt | 118 m2 |
| BBR Bebygget areal hovedbygningen | 118 m2 |
| BBR Samlet boligareal | 97 m2 |
| BBR Samlet erhvervsareal | 91 m2 |
| BBR Antal etager | 1 |
Billede af Kirke Eskilstrup Station [1901-1991]

Fotograf: Jacob Laursen - Dato: den 21. juli 2009 Download billede
Billeder af Kirke Eskilstrup Station [1901-1991]

Fotograf: Jacob Laursen - Dato: den 19. juli 2023 Download billede

Fotograf: Jacob Laursen - Dato: den 19. juli 2023 Download billede

Fotograf: Jacob Laursen - Dato: den 19. juli 2023 Download billede

Fotograf: Jacob Laursen - Dato: den 19. juli 2023 Download billede

Fotograf: Jacob Laursen - Dato: den 19. juli 2023 Download billede

Fotograf: Jacob Laursen - Dato: den 19. juli 2023 Download billede

Fotograf: Jacob Laursen - Dato: den 19. juli 2023 Download billede

Fotograf: Jacob Laursen - Dato: den 19. juli 2023 Download billede

Fotograf: Jacob Laursen - Dato: den 25. juli 2022 Download billede

Fotograf: Jacob Laursen - Dato: den 25. juli 2022 Download billede

Fotograf: Jacob Laursen - Dato: den 25. juli 2022 Download billede

Fotograf: Jacob Laursen - Dato: den 25. juli 2022 Download billede

Fotograf: Jacob Laursen - Dato: den 21. juli 2009 Download billede

Fotograf: Jacob Laursen - Dato: den 21. juli 2009 Download billede

Fotograf: Jacob Laursen - Dato: den 21. juli 2009 Download billede

Fotograf: Steen Larsen - Dato: den 19. februar 1983

Fotograf: Jacob Laursen - Dato: den 7. marts 2024 Download billede

Fotograf: Jacob Laursen - Dato: den 7. marts 2024 Download billede

Fotograf: Jacob Laursen - Dato: den 19. juli 2023 Download billede
Tegninger af Kirke Eskilstrup Station [1901-1991]

Kilde: Danmarks Jernbanemuseum - Dato: 1900 (september) - LINK til kilde.
Noter til: Tegning af Kirke Eskilstrup Stations varehus.
Transportselskab/ operatør: Høng - Tølløse Jernbane (HTJ)
Jernbanested: Høng - Tølløse
Beskrivelse: Varehus: *Ruds-Vedby samt *Kulby, *Skellebjerg, *Nyrup og *Kirke-Eskildstrup.
Infrastrukturejer: Høng - Tølløse Jernbanens Aktieselskab
Motivdato: 9/1900
Fotograf/ billedkunstner: Sign.: H. Wenck
Delsamling: Ulrik T. Jensens samling
Scannummer: HTJ-varehuse-scan26986

Kilde: Danmarks Jernbanemuseum - Dato: 1900 (september) - LINK til kilde.
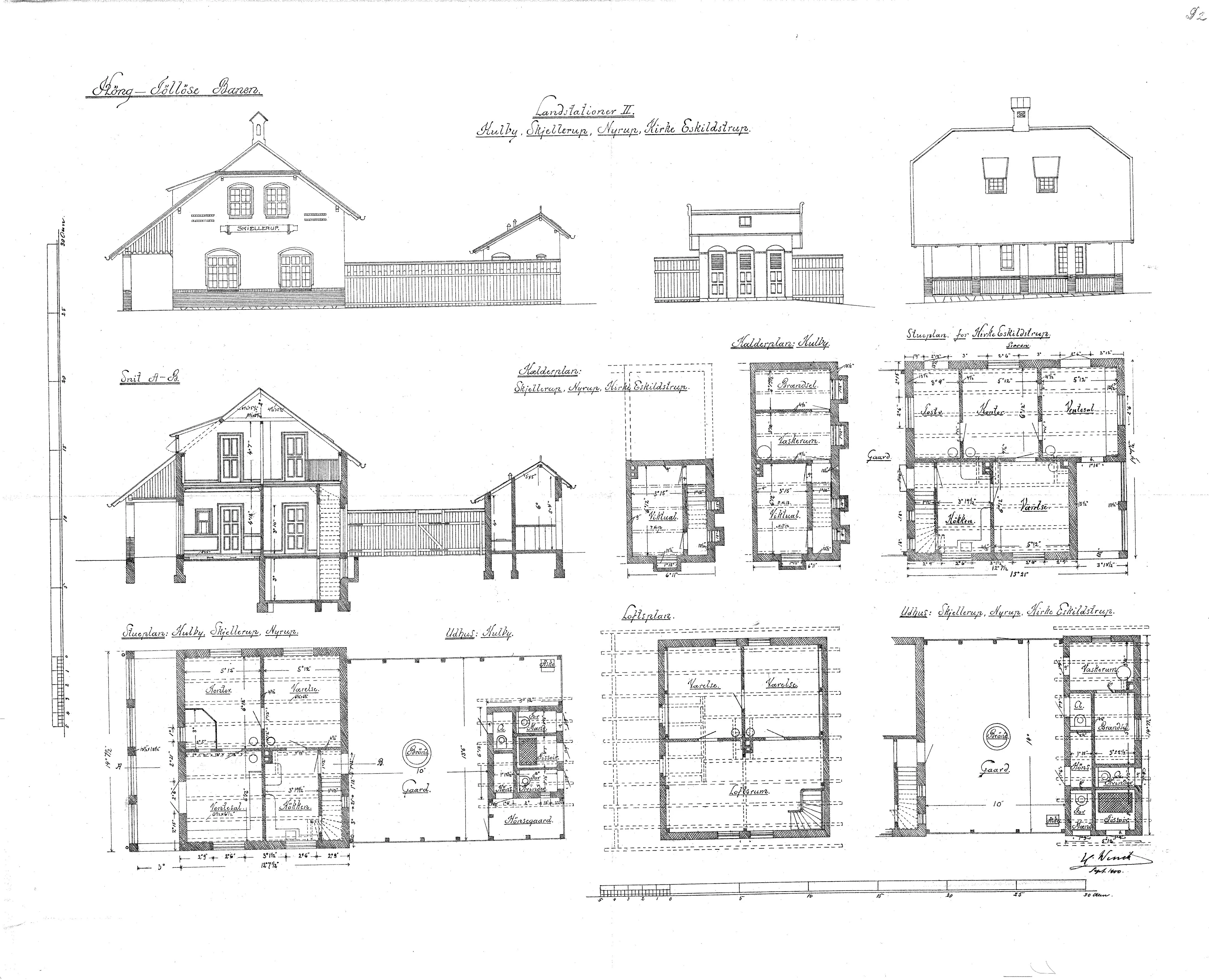
Noter til: Tegning af Kirke Eskilstrup Station.
Transportselskab/ operatør: Høng - Tølløse Jernbane (HTJ)
Jernbanested: Høng - Tølløse
Beskrivelse: Hovedbygning *Kulby, *Skjellerup (= *Skellebjerg), *Nyrup og *Kirke-Eskildstrup.
Infrastrukturejer: Høng - Tølløse Jernbanens Aktieselskab
Motivdato: 9/1900
Fotograf/ billedkunstner: Sign.: H. Wenck
Delsamling: Ulrik T. Jensens samling
Scannummer: HTJ-Landstationer-II-scan409
Google Street View af Kirke Eskilstrup Station [1901-1991]
Kilde: © Street View, by Google Maps - Dato: den 29. december 2021 - LINK til kilde.
Kort over Kirke Eskilstrup Station [1901-1991]
![Historisk kort over Kirke Eskilstrup Station [1901-1991] Historisk kort over Kirke Eskilstrup Station [1901-1991]](./kort/3145_ZOOM.webp)
Kort over Kirke Eskilstrup Station [1901-1991] - Kilde: Indeholder data fra Styrelsen for Dataforsyning og Effektivisering, skærmkortet, WMS-tjeneste via datafordeler.dk (Ortofoto forår)
![Historisk kort over Kirke Eskilstrup Station [1901-1991] Historisk kort over Kirke Eskilstrup Station [1901-1991]](./kort/3145_ORTO.webp)
Kort over Kirke Eskilstrup Station [1901-1991] - Kilde: Indeholder data fra Styrelsen for Dataforsyning og Effektivisering, skærmkortet, WMS-tjeneste via datafordeler.dk (Ortofoto forår)
![Historisk kort over Kirke Eskilstrup Station [1901-1991] Historisk kort over Kirke Eskilstrup Station [1901-1991]](./kort/3145_1980.webp)
Kort over Kirke Eskilstrup Station [1901-1991] - Kilde: Indeholder data fra Styrelsen for Dataforsyning og Effektivisering, skærmkortet, WMS-tjeneste via datafordeler.dk (Topgrafisk kort 1980-2001)
![Historisk kort over Kirke Eskilstrup Station [1901-1991] Historisk kort over Kirke Eskilstrup Station [1901-1991]](./kort/3145_1953.webp)
Kort over Kirke Eskilstrup Station [1901-1991] - Kilde: Indeholder data fra Styrelsen for Dataforsyning og Effektivisering, skærmkortet, WMS-tjeneste via datafordeler.dk (Topografisk kort 1953-1976)
![Historisk kort over Kirke Eskilstrup Station [1901-1991] Historisk kort over Kirke Eskilstrup Station [1901-1991]](./kort/3145_1901.webp)
Kort over Kirke Eskilstrup Station [1901-1991] - Kilde: Indeholder data fra Styrelsen for Dataforsyning og Effektivisering, skærmkortet, WMS-tjeneste via datafordeler.dk (Lave Målebordsblade 1901-1971)
Litteratur for: Kirke Eskilstrup Station [1901-1991]
>> Husk at støtte de hårdarbejdende forfattere, som bruger meget tid på at sikre vores danske jernbanehistorie. <<
![]() | Bogtitel Forfatter Udgivelsesår Sidetal Udgivelsessted Forlag ISBN | Høng - Tølløse Jernbane 1901-1976 (Dansk Jernbane-Klub: 40) Ole-Chr. M. Plum 1976 158 Dansk Jernbane-Klub 87-87050-02-1 |
![]() | Bogtitel Forfatter Udgivelsesår Sidetal Udgivelsessted Forlag ISBN | Høng Tølløse Jernbane 100 år (Dansk Jernbane-Klub: 52) Ole-Chr. Munk Plum 2001 256 Dansk Jernbane-Klub 8787050455 |
![]() | Bogtitel Forfatter Udgivelsesår Sidetal Udgivelsessted Forlag ISBN | Vestsjællandske jernbaner Niels Jensen 1978 103 København J. Fr. Clausen 87-11-03879-9 |


