Faaborg Station (Få), en artikel om Faaborg Station
Faaborg Station er tegnet af arkitekt N.P.C. Holsøe og blev opført i 1882, bygget efter lettere tilpassede tegninger af Aarhus Østbanegård (Aarhus Ø).
Links til supplerende læsning:
veteranbanen-faaborg.dk (Link til hjemmesiden for: Syd Fyenske Veteranjernbane )Stamdata for Faaborg Station
| Andre navne og stavemåder | Før 02.06.1957 Faaborg, hvor navnet skiftede til Fåborg - i dag staves byden både Faaborg og Fåborg. |
| Byggeår | 1882 |
| Åbnet | 1882.04.01 |
| Nedlagt | 1962.05.27 |
| Status | Eksisterer stadig |
| Arkitekt | N.P.C. Holsøe |
| Adresse | Banegårdspladsen 2A, 5600 Faaborg |
| Stednavneforkortelse | Få |
| Højdeplacering over havet | 1,8 meter |
| GPS koordinater | 55.093784,10.245330 |
Faaborg Station servicerede følgende jernbaner
| Jernbanens navn | Operatør | Længde | Åbnet | Nedlagt |
|---|---|---|---|---|
| Odense-Nørre Broby-Faaborg Jernbane | DSB (Oprindelig: ONFJ) | 51,3 | 1906.10.03 | 1954.05.22 |
| Ringe-Faaborg Banen | DSB (Oprindelig: RFB) | 29,4 | 1882.04.01 | 1987.12.23 , dog mellem Ringe og Korinth frem til 1988.01.04 |
| Svendborg-Faaborg Banen | DSB (Oprindelig: SFB) | 26,4 | 1916.11.25 | 1954.05.22 |
| Syd Fyenske Veteranjernbane | SFvJ | 12,5 | 1882.04.01 | I drift |
BBR Data for Faaborg StationBBR DATA fra Danmarks Adressers Web API (DAWA), som Styrelsen for Dataforsyning og Effektivisering (SDFE) har ansvaret for.BBR DATA hentet: 2020-05-24 18:14:07 | |
| BBR Højde over havet | 1,8 meter |
| BBR GPS koordinater | 55.09375357,10.24499951 |
| BBR Byggeår eller konverteringsår | 1882 |
| BBR Seneste ombygning | 1997 |
| BBR Bebygget areal i alt | 912 m2 |
| BBR Bebygget areal hovedbygningen | 485 m2 |
| BBR Samlet erhvervsareal | 605 m2 |
| BBR Antal etager | 2 |
Billede af Faaborg Station

Fotograf: Jacob Laursen - Dato: den 1. september 2020 Download billede
Billeder af Faaborg Station

Fotograf: Lars Steffensen - Dato: den 30. april 2021

Fotograf: Jacob Laursen - Dato: den 1. september 2020 Download billede

Fotograf: Jacob Laursen - Dato: den 1. september 2020 Download billede

Fotograf: Jacob Laursen - Dato: den 1. september 2020 Download billede

Fotograf: Jacob Laursen - Dato: den 1. september 2020 Download billede

Fotograf: Jacob Laursen - Dato: den 1. september 2020 Download billede

Fotograf: Jacob Laursen - Dato: den 1. september 2020 Download billede

Fotograf: Jacob Laursen - Dato: den 1. september 2020 Download billede

Fotograf: Jacob Laursen - Dato: den 1. september 2020 Download billede

Fotograf: Jacob Laursen - Dato: den 1. september 2020 Download billede

Fotograf: Jacob Laursen - Dato: den 1. september 2020 Download billede

Fotograf: Jacob Laursen - Dato: den 1. september 2020 Download billede

Fotograf: Jacob Laursen - Dato: den 1. september 2020 Download billede

Fotograf: Jacob Laursen - Dato: den 1. september 2020 Download billede

Fotograf: Jacob Laursen - Dato: den 1. september 2020 Download billede

Fotograf: Jacob Laursen - Dato: den 1. september 2020 Download billede

Fotograf: Jacob Laursen - Dato: den 1. september 2020 Download billede

Fotograf: Jacob Laursen - Dato: den 1. september 2020 Download billede

Fotograf: Jacob Laursen - Dato: den 1. september 2020 Download billede

Fotograf: Jacob Laursen - Dato: den 1. september 2020 Download billede

Fotograf: Jacob Laursen - Dato: den 1. september 2020 Download billede

Fotograf: Jacob Laursen - Dato: den 1. september 2020 Download billede

Fotograf: Jacob Laursen - Dato: den 1. september 2020 Download billede

Fotograf: Jacob Laursen - Dato: den 1. september 2020 Download billede

Fotograf: Jacob Laursen - Dato: den 1. september 2020 Download billede

Fotograf: Jacob Laursen - Dato: den 1. september 2020 Download billede

Fotograf: Jacob Laursen - Dato: den 10. april 2009 Download billede

Fotograf: Jacob Laursen - Dato: den 10. april 2009 Download billede

Fotograf: Jacob Laursen - Dato: den 10. april 2009 Download billede

Fotograf: Jacob Laursen - Dato: den 10. april 2009 Download billede

Fotograf: Jacob Laursen - Dato: den 10. april 2009 Download billede

Fotograf: Jacob Laursen - Dato: den 10. april 2009 Download billede

Fotograf: Jacob Laursen - Dato: den 22. oktober 2006 Download billede

Fotograf: Jacob Laursen - Dato: den 22. oktober 2006 Download billede

Fotograf: Jacob Laursen - Dato: den 22. oktober 2006 Download billede

Fotograf: Jacob Laursen - Dato: den 22. oktober 2006 Download billede

Fotograf: Jacob Laursen - Dato: den 22. oktober 2006 Download billede

Fotograf: Jacob Laursen - Dato: den 22. oktober 2006 Download billede

Fotograf: Jacob Laursen - Dato: den 22. oktober 2006 Download billede

Fotograf: Jacob Laursen - Dato: den 22. oktober 2006 Download billede

Fotograf: Jacob Laursen - Dato: den 22. oktober 2006 Download billede

Fotograf: Jacob Laursen - Dato: den 22. oktober 2006 Download billede

Fotograf: Det Kgl. Bibliotek, Sylvest Jensen Luftfoto - Dato: 1956 - LINK til kilde.
Noter til: Billede af Faaborg Station.
Titel:Byoptagelse
Bygningsnavn:Byoptagelse
Sted:Danmark, Fyn, Faaborg
Ophav:Sylvest Jensen Luftfoto
År:1956
Id:B02233_020H.tif

Fotograf: Det Kgl. Bibliotek, Sylvest Jensen Luftfoto - Dato: 1956 - LINK til kilde.
Noter til: Billede af Faaborg Station.
Titel:- 1956 -
Sted:Danmark, Fyn, Faaborg
Ophav:Sylvest Jensen Luftfoto
År:1956
Id:B01873_p_014e.tif

Fotograf: Det Kgl. Bibliotek, Sylvest Jensen Luftfoto - Dato: 1956 - LINK til kilde.
Noter til: Billede af Faaborg Station.
Titel:- 1956 -
Sted:Danmark, Fyn, Fåborg
Ophav:Sylvest Jensen Luftfoto
År:1956
Id:b-dia_2233c.tif

Fotograf: Det Kgl. Bibliotek, Nowico - Dato: 1948 - LINK til kilde.
Noter til: Billede af Faaborg Station.
Titel:Faaborg by og havn - 1948
Bygningsnavn:Faaborg by og havn
Sted:Danmark, Fyn, Faaborg by
Ophav:Nowico
År:1948
Id:No-1919a_01.tif

Fotograf: Det Kgl. Bibliotek, Sylvest Jensen Luftfoto - Dato: 1946-1969 - LINK til kilde.
Noter til: Billede af Faaborg Station.
Titel:Faaborg
Sted:Danmark, Faaborg
Ophav:Sylvest Jensen Luftfoto
År:1946-1969
Note:Fåborg by
Id:sylvest_nks_04317_2.tif

Fotograf: Det Kgl. Bibliotek, Sylvest Jensen Luftfoto - Dato: 1939 - LINK til kilde.
Noter til: Billede af Faaborg Station.
Titel:Banegårdspladsen 2 - 1939 - Faaborg Jernbanestation
Bygningsnavn:Faaborg Jernbanestation
Sted:Danmark, Fyn, Faaborg, Banegårdspladsen 2
Ophav:Sylvest Jensen Luftfoto
År:1939
Id:L0833_20.tif
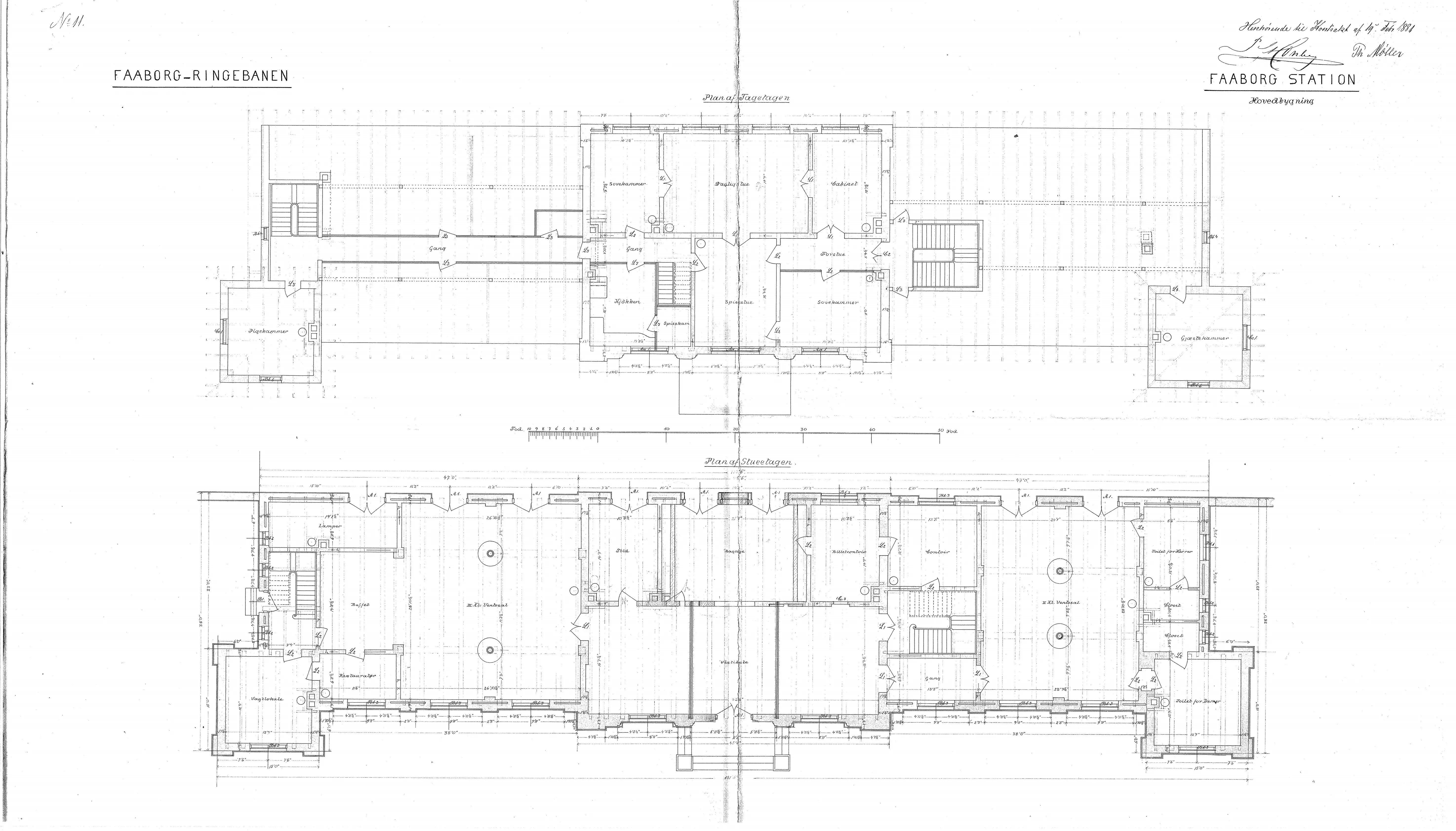
Tegninger af Faaborg Station

Kilde: Danmarks Jernbanemuseum - Dato: Ukendt - LINK til kilde.
Noter til: Tegning af Faaborg Station.
Transportselskab/ operatør: Ringe - Faaborg Banen (RFB)
Jernbanested: Fåborg
Navneændringer: Før 02.06.1957 Faaborg.
På strækningen: Ringe - Fåborg
Beskrivelse: Stationsbygning.
Infrastrukturforvalter: Det sydfyenske Jernbaneselskab
Infrastrukturejer: Den danske stat
Anslået motivdato: u.a.
Fotograf/ billedkunstner: ukendt
Delsamling: Ulrik T. Jensens samling
Scannummer: RFB-Faaborg-scan476

Kilde: Danmarks Jernbanemuseum - Dato: Ukendt - LINK til kilde.
Noter til: Tegning af Faaborg Station.
Transportselskab/ operatør: Ringe - Faaborg Banen (RFB)
Jernbanested: Fåborg
Navneændringer: Før 02.06.1957 Faaborg.
På strækningen: Ringe - Fåborg
Beskrivelse: Stationsbygning.
Infrastrukturforvalter: Det sydfyenske Jernbaneselskab
Infrastrukturejer: Den danske stat
Anslået motivdato: u.a.
Fotograf/ billedkunstner: ukendt
Delsamling: Ulrik T. Jensens samling
Scannummer: RFB-Faaborg-snit-scan513

Kilde: Danmarks Jernbanemuseum - Dato: Ukendt - LINK til kilde.
Noter til: Tegning af forandring af motorvognsremise ved Faaborg Station.
Transportselskab/ operatør: Ringe - Faaborg Banen (RFB)
Jernbanested: Fåborg
Navneændringer: Før 02.06.1957 Faaborg.
På strækningen: Ringe - Fåborg
Beskrivelse: forandring af motorvognsremise.
Infrastrukturforvalter: Det sydfyenske Jernbaneselskab, Aktieselskab
Infrastrukturejer: Den danske stat
Anslået motivdato: u.a.
Fotograf/ billedkunstner: ukendt
Delsamling: Ulrik T. Jensens samling
Scannummer: SFJ-Faaborg-motorremise-scan28121

Kilde: Danmarks Jernbanemuseum - Dato: den 11. oktober 1954 - LINK til kilde.
Noter til: Tegning af Faaborg Stations Ombygning af pakhus.
Transportselskab/ operatør: Danske Statsbaner (DSB)
Jernbanested: Fåborg
Navneændringer: Før 02.06.1957 Faaborg.
På strækningen: Ringe - Fåborg
Beskrivelse: Ombygning af pakhus.
Infrastrukturejer: Danske Statsbaner
Motivdato: 11. okt. 1954
Delsamling: Ulrik T. Jensens samling
Scannummer: RFB-faaborg-varehus-1950-scan28485

Kilde: Danmarks Jernbanemuseum - Dato: 1929 (april) - LINK til kilde.
Noter til: Tegning af Faaborg Stations Motorvognsremise.
Transportselskab/ operatør: Ringe - Faaborg Banen (RFB)
Jernbanested: Fåborg
Navneændringer: Før 02.06.1957 Faaborg.
På strækningen: Ringe - Fåborg
Beskrivelse: Motorvognsremise.
Infrastrukturforvalter: Det sydfyenske Jernbaneselskab, Aktieselskab
Infrastrukturejer: Den danske stat
Motivdato: 4/1929
Delsamling: Ulrik T. Jensens samling
Scannummer: RFB-motorremise-scan28491

Kilde: Danmarks Jernbanemuseum - Dato: 1929 (april) - LINK til kilde.
Noter til: Tegning af Motorvognsremise ved Faaborg Station.
Transportselskab/ operatør: Ringe - Faaborg Banen (RFB)
Jernbanested: Fåborg
Navneændringer: Før 02.06.1957 Faaborg.
På strækningen: Ringe - Fåborg
Beskrivelse: Motorvognsremise.
Infrastrukturforvalter: Det sydfyenske Jernbaneselskab, Aktieselskab
Infrastrukturejer: Den danske stat
Motivdato: 4/1929
Fotograf/ billedkunstner: ukendt
Delsamling: Ulrik T. Jensens samling
Scannummer: SFJ-remise-faaborg-scan28277

Kilde: Danmarks Jernbanemuseum - Dato: 1882 - LINK til kilde.
Noter til: Tegning af Posthus ved Faaborg Station.
Transportselskab/ operatør: Post- og Befordringsvæsenet
Jernbanested: Fåborg
Navneændringer: Før 02.06.1957 Faaborg.
På strækningen: Ringe - Fåborg
Beskrivelse: Posthus.
Infrastrukturejer: Den danske stat
Motivdato: 1882
Anslået motivdato: ca. 1882
Fotograf/ billedkunstner: ukendt
Delsamling: Ulrik T. Jensens samling
Scannummer: RFB-Faaborg-posthus-planer-scan675

Kilde: Danmarks Jernbanemuseum - Dato: 1882 - LINK til kilde.
Noter til: Tegning af Posthus ved Faaborg Station.
Transportselskab/ operatør: Post- og Befordringsvæsenet
Jernbanested: Fåborg
Navneændringer: Før 02.06.1957 Faaborg.
På strækningen: Ringe - Fåborg
Beskrivelse: Posthus.
Infrastrukturejer: Den danske stat
Motivdato: 1882
Anslået motivdato: ca. 1882
Fotograf/ billedkunstner: ukendt
Delsamling: Ulrik T. Jensens samling
Scannummer: RFB-Faaborg-posthus-scan449

Kilde: Danmarks Jernbanemuseum - Dato: 1882 - LINK til kilde.
Noter til: Tegning af Posthus ved Faaborg Station.
Transportselskab/ operatør: Post- og Befordringsvæsenet
Jernbanested: Fåborg
Navneændringer: Før 02.06.1957 Faaborg.
På strækningen: Ringe - Fåborg
Beskrivelse: Post- og telegrafbygning.
Infrastrukturejer: Den danske stat
Motivdato: 1882
Anslået motivdato: ca. 1882
Fotograf/ billedkunstner: Sign.: N.P.C. Holsøe
Delsamling: Ulrik T. Jensens samling
Scannummer: RFB-Faaborg-posthus-planer-scan671

Kilde: Danmarks Jernbanemuseum - Dato: 1882 - LINK til kilde.
Noter til: Tegning af Posthus ved Faaborg Station.
Transportselskab/ operatør: Post- og Befordringsvæsenet
Jernbanested: Fåborg
Navneændringer: Før 02.06.1957 Faaborg.
På strækningen: Ringe - Fåborg
Beskrivelse: Post- og telegrafbygning.
Infrastrukturejer: Den danske stat
Motivdato: 1882
Anslået motivdato: ca. 1882
Fotograf/ billedkunstner: Sign.: N.P.C. Holsøe
Delsamling: Ulrik T. Jensens samling
Scannummer: RFB-Faaborg-posthus-scan450

Kilde: Danmarks Jernbanemuseum - Dato: 1882 - LINK til kilde.
Noter til: Tegning af Posthus ved Faaborg Station.
Transportselskab/ operatør: Post- og Befordringsvæsenet
Jernbanested: Fåborg
Navneændringer: Før 02.06.1957 Faaborg.
På strækningen: Ringe - Fåborg
Beskrivelse: Posthus.
Infrastrukturejer: Den danske stat
Motivdato: 1882
Anslået motivdato: ca. 1882
Fotograf/ billedkunstner: ukendt
Delsamling: Ulrik T. Jensens samling
Scannummer: RFB-Faaborg-posthus-scan507

Kilde: Danmarks Jernbanemuseum - Dato: 1882 - LINK til kilde.
Noter til: Tegning af Posthus ved Faaborg Station.
Transportselskab/ operatør: Post- og Befordringsvæsenet
Jernbanested: Fåborg
Navneændringer: Før 02.06.1957 Faaborg.
På strækningen: Ringe - Fåborg
Beskrivelse: Posthus.
Infrastrukturejer: Den danske stat
Motivdato: 1882
Anslået motivdato: ca. 1882
Fotograf/ billedkunstner: Sign.: N.P.C. Holsøe
Delsamling: Ulrik T. Jensens samling
Scannummer: RFB-Faaborg-posthus-scan662

Kilde: Danmarks Jernbanemuseum - Dato: 1882 - LINK til kilde.
Noter til: Tegning af Posthus ved Faaborg Station.
Transportselskab/ operatør: Post- og Befordringsvæsenet
Jernbanested: Fåborg
Navneændringer: Før 02.06.1957 Faaborg.
På strækningen: Ringe - Fåborg
Beskrivelse: Posthus.
Infrastrukturejer: Den danske stat
Motivdato: 1882
Anslået motivdato: ca. 1882
Fotograf/ billedkunstner: ukendt
Delsamling: Ulrik T. Jensens samling
Scannummer: RFB-Faaborg-posthus-snit-scan674

Kilde: Danmarks Jernbanemuseum - Dato: 1882 - LINK til kilde.
Noter til: Tegning af Faaborg Stations Posthus.
Transportselskab/ operatør: Post- og Befordringsvæsenet
Jernbanested: Fåborg
Navneændringer: Før 02.06.1957 Faaborg.
På strækningen: Ringe - Fåborg
Beskrivelse: Posthus.
Infrastrukturejer: Den danske stat
Motivdato: 1882
Anslået motivdato: ca. 1882
Delsamling: Ulrik T. Jensens samling
Scannummer: RFB-Faaborg-posthus-facader-scan692

Kilde: Danmarks Jernbanemuseum - Dato: 1882 - LINK til kilde.
Noter til: Tegning af Faaborg Stations Posthus.
Transportselskab/ operatør: Post- og Befordringsvæsenet
Jernbanested: Fåborg
Navneændringer: Før 02.06.1957 Faaborg.
På strækningen: Ringe - Fåborg
Beskrivelse: Post- og telegrafbygning. Sign.: N.P.C. Holsøe.
Infrastrukturejer: Den danske stat
Motivdato: 1882
Anslået motivdato: ca. 1882
Delsamling: Ulrik T. Jensens samling
Scannummer: RFB-Faaborg-posthus-plan-scan533

Kilde: Danmarks Jernbanemuseum - Dato: 1882 - LINK til kilde.
Noter til: Tegning af Faaborg Stations Posthus.
Transportselskab/ operatør: Post- og Befordringsvæsenet
Jernbanested: Fåborg
Navneændringer: Før 02.06.1957 Faaborg.
På strækningen: Ringe - Fåborg
Beskrivelse: Post- og telegrafbygning. Sign.: N.P.C. Holsøe.
Infrastrukturejer: Den danske stat
Motivdato: 1882
Anslået motivdato: ca. 1882
Delsamling: Ulrik T. Jensens samling
Scannummer: RFB-Faaborg-post-og telegrafbygning-scan669

Kilde: Danmarks Jernbanemuseum - Dato: 1882 - LINK til kilde.
Noter til: Tegning af Faaborg Stations Posthus.
Transportselskab/ operatør: Post- og Befordringsvæsenet
Jernbanested: Fåborg
Navneændringer: Før 02.06.1957 Faaborg.
På strækningen: Ringe - Fåborg
Beskrivelse: Posthus.
Infrastrukturejer: Den danske stat
Motivdato: 1882
Anslået motivdato: ca. 1882
Delsamling: Ulrik T. Jensens samling
Scannummer: RFB-Faaborg-posthus-planer-scan510

Kilde: Danmarks Jernbanemuseum - Dato: 1882 - LINK til kilde.
Noter til: Tegning af Faaborg Stations Posthus.
Transportselskab/ operatør: Post- og Befordringsvæsenet
Jernbanested: Fåborg
Navneændringer: Før 02.06.1957 Faaborg.
På strækningen: Ringe - Fåborg
Beskrivelse: Posthus.
Infrastrukturejer: Den danske stat
Motivdato: 1882
Anslået motivdato: ca. 1882
Delsamling: Ulrik T. Jensens samling
Scannummer: RFB-Faaborg-posthus-scan509

Kilde: Danmarks Jernbanemuseum - Dato: 1882 - LINK til kilde.
Noter til: Tegning af Faaborg Stations Posthus.
Transportselskab/ operatør: Post- og Befordringsvæsenet
Jernbanested: Fåborg
Navneændringer: Før 02.06.1957 Faaborg.
På strækningen: Ringe - Fåborg
Beskrivelse: Posthus.
Infrastrukturejer: Den danske stat
Motivdato: 1882
Anslået motivdato: ca. 1882
Delsamling: Ulrik T. Jensens samling
Scannummer: RFB-Faaborg-posthus-scan511

Kilde: Danmarks Jernbanemuseum - Dato: 1881 - LINK til kilde.
Noter til: Tegning af Faaborg Station.
Transportselskab/ operatør: Ringe - Faaborg Banen (RFB)
Jernbanested: Fåborg
Navneændringer: Før 02.06.1957 Faaborg.
På strækningen: Ringe - Fåborg
Beskrivelse: Stationsbygning.
Infrastrukturforvalter: Det sydfyenske Jernbaneselskab
Infrastrukturejer: Den danske stat
Motivdato: 1881
Fotograf/ billedkunstner: ukendt
Delsamling: Ulrik T. Jensens samling
Scannummer: RFB-Faaborg-hovedbygning-facade-m-banen-scan693

Kilde: Danmarks Jernbanemuseum - Dato: 1881 - LINK til kilde.
Noter til: Tegning af Faaborg Station.
Transportselskab/ operatør: Ringe - Faaborg Banen (RFB)
Jernbanested: Fåborg
Navneændringer: Før 02.06.1957 Faaborg.
På strækningen: Ringe - Fåborg
Beskrivelse: Stationsbygning.
Infrastrukturforvalter: Det sydfyenske Jernbaneselskab
Infrastrukturejer: Den danske stat
Motivdato: 1881
Fotograf/ billedkunstner: ukendt
Delsamling: Ulrik T. Jensens samling
Scannummer: RFB-Faaborg-plan-fundament-scan514

Kilde: Danmarks Jernbanemuseum - Dato: 1881 - LINK til kilde.
Noter til: Tegning af Faaborg Station.
Transportselskab/ operatør: Ringe - Faaborg Banen (RFB)
Jernbanested: Fåborg
Navneændringer: Før 02.06.1957 Faaborg.
På strækningen: Ringe - Fåborg
Beskrivelse: Stationsbygning.
Infrastrukturforvalter: Det sydfyenske Jernbaneselskab
Infrastrukturejer: Den danske stat
Motivdato: 1881
Fotograf/ billedkunstner: ukendt
Delsamling: Ulrik T. Jensens samling
Scannummer: RFB-Faaborg-planer-scan690

Kilde: Danmarks Jernbanemuseum - Dato: 1881 - LINK til kilde.
Noter til: Tegning af Faaborg Station.
Transportselskab/ operatør: Ringe - Faaborg Banen (RFB)
Jernbanested: Fåborg
Navneændringer: Før 02.06.1957 Faaborg.
På strækningen: Ringe - Fåborg
Beskrivelse: Stationsbygning.
Infrastrukturforvalter: Det sydfyenske Jernbaneselskab
Infrastrukturejer: Den danske stat
Motivdato: 1881
Fotograf/ billedkunstner: ukendt
Delsamling: Ulrik T. Jensens samling
Scannummer: RFB-Faaborg-scan27341

Kilde: Danmarks Jernbanemuseum - Dato: 1881 - LINK til kilde.
Noter til: Tegning af Stald ved Faaborg Station.
Transportselskab/ operatør: Ringe - Faaborg Banen (RFB)
Jernbanested: Fåborg
Navneændringer: Før 02.06.1957 Faaborg.
På strækningen: Ringe - Fåborg
Beskrivelse: Stald.
Infrastrukturforvalter: Det sydfyenske Jernbaneselskab
Infrastrukturejer: Den danske stat
Motivdato: 1881
Fotograf/ billedkunstner: Sign.: N.P.C. Holsøe
Delsamling: Ulrik T. Jensens samling
Scannummer: RFB-Faaborg-stald-scan661

Kilde: Danmarks Jernbanemuseum - Dato: 1881 - LINK til kilde.
Noter til: Tegning af Faaborg Station.
Transportselskab/ operatør: Ringe - Faaborg Banen (RFB)
Jernbanested: Fåborg
Navneændringer: Før 02.06.1957 Faaborg.
På strækningen: Ringe - Fåborg
Beskrivelse: Varehus.
Infrastrukturforvalter: Det sydfyenske Jernbaneselskab
Infrastrukturejer: Den danske stat
Motivdato: 1881
Fotograf/ billedkunstner: ukendt
Delsamling: Ulrik T. Jensens samling
Scannummer: RFB-Faaborg-varehus-scan695

Kilde: Danmarks Jernbanemuseum - Dato: 1881 - LINK til kilde.
Noter til: Tegning af Faaborg Station.
Transportselskab/ operatør: Ringe - Faaborg Banen (RFB)
Jernbanested: Fåborg
Navneændringer: Før 02.06.1957 Faaborg.
På strækningen: Ringe - Fåborg
Beskrivelse: Stationsbygning.
Infrastrukturforvalter: Det sydfyenske Jernbaneselskab
Infrastrukturejer: Den danske stat
Motivdato: 1881
Anslået motivdato: ca. 1881
Delsamling: Ulrik T. Jensens samling
Scannummer: DSB-Faaborg-scan27340

Kilde: Danmarks Jernbanemuseum - Dato: 1881 - LINK til kilde.
Noter til: Tegning af Faaborg Station.
Transportselskab/ operatør: Ringe - Faaborg Banen (RFB)
Jernbanested: Fåborg
Navneændringer: Før 02.06.1957 Faaborg.
På strækningen: Ringe - Fåborg
Beskrivelse: Stationsbygning.
Infrastrukturforvalter: Det sydfyenske Jernbaneselskab
Infrastrukturejer: Den danske stat
Motivdato: 1881
Delsamling: Ulrik T. Jensens samling
Scannummer: RFB-Faaborg-baneside-scan506

Kilde: Danmarks Jernbanemuseum - Dato: 1881 - LINK til kilde.
Noter til: Tegning af Faaborg Station.
Transportselskab/ operatør: Ringe - Faaborg Banen (RFB)
Jernbanested: Fåborg
Navneændringer: Før 02.06.1957 Faaborg.
På strækningen: Ringe - Fåborg
Beskrivelse: Stationsbygning.
Infrastrukturforvalter: Det sydfyenske Jernbaneselskab
Infrastrukturejer: Den danske stat
Motivdato: 1881
Delsamling: Ulrik T. Jensens samling
Scannummer: RFB-Faaborg-facade-scan694

Kilde: Danmarks Jernbanemuseum - Dato: 1881 - LINK til kilde.
Noter til: Tegning af Faaborg Station.
Transportselskab/ operatør: Ringe - Faaborg Banen (RFB)
Jernbanested: Fåborg
Navneændringer: Før 02.06.1957 Faaborg.
På strækningen: Ringe - Fåborg
Beskrivelse: Stationsbygning.
Infrastrukturforvalter: Det sydfyenske Jernbaneselskab
Infrastrukturejer: Den danske stat
Motivdato: 1881
Delsamling: Ulrik T. Jensens samling
Scannummer: RFB-Faaborg-hovedbygning-planer-scan691

Kilde: Danmarks Jernbanemuseum - Dato: 1881 - LINK til kilde.
Noter til: Tegning af Faaborg Stations Kvægfold med rampe til 3 vogne.
Transportselskab/ operatør: Ringe - Faaborg Banen (RFB)
Jernbanested: Fåborg
Navneændringer: Før 02.06.1957 Faaborg.
På strækningen: Ringe - Fåborg
Beskrivelse: Kvægfold med rampe til 3 vogne.
Infrastrukturforvalter: Det sydfyenske Jernbaneselskab
Infrastrukturejer: Den danske stat
Motivdato: 1881
Delsamling: Ulrik T. Jensens samling
Scannummer: RFB-Faaborg-kvagfold-og-rampe-scan658

Kilde: Danmarks Jernbanemuseum - Dato: 1881 - LINK til kilde.
Noter til: Tegning af Faaborg Station.
Transportselskab/ operatør: Ringe - Faaborg Banen (RFB)
Jernbanested: Fåborg
Navneændringer: Før 02.06.1957 Faaborg.
På strækningen: Ringe - Fåborg
Beskrivelse: Stationsbygning.
Infrastrukturforvalter: Det sydfyenske Jernbaneselskab
Infrastrukturejer: Den danske stat
Motivdato: 1881
Delsamling: Ulrik T. Jensens samling
Scannummer: RFB-Faaborg-hovedbygning-snit-scan685

Kilde: Danmarks Jernbanemuseum - Dato: 1881 - LINK til kilde.
Noter til: Tegning af Faaborg Stations remise.
Transportselskab/ operatør: Ringe - Faaborg Banen (RFB)
Jernbanested: Fåborg
Navneændringer: Før 02.06.1957 Faaborg.
På strækningen: Ringe - Fåborg
Beskrivelse: Remise.
Infrastrukturforvalter: Det sydfyenske Jernbaneselskab
Infrastrukturejer: Den danske stat
Motivdato: 1881
Delsamling: Ulrik T. Jensens samling
Scannummer: RFB-Faaborg-lokomotivremise-scan699

Kilde: Danmarks Jernbanemuseum - Dato: 1881 - LINK til kilde.
Noter til: Tegning af Faaborg Stations remise.
Transportselskab/ operatør: Ringe - Faaborg Banen (RFB)
Jernbanested: Fåborg
Navneændringer: Før 02.06.1957 Faaborg.
På strækningen: Ringe - Fåborg
Beskrivelse: Remise.
Infrastrukturforvalter: Det sydfyenske Jernbaneselskab
Infrastrukturejer: Den danske stat
Motivdato: 1881
Delsamling: Ulrik T. Jensens samling
Scannummer: RFB-Faaborg-remise-plan-snit-scan660

Kilde: Danmarks Jernbanemuseum - Dato: 1881 - LINK til kilde.
Noter til: Tegning af Faaborg Stations varehus.
Transportselskab/ operatør: Ringe - Faaborg Banen (RFB)
Jernbanested: Fåborg
Navneændringer: Før 02.06.1957 Faaborg.
På strækningen: Ringe - Fåborg
Beskrivelse: Varehus.
Infrastrukturforvalter: Det sydfyenske Jernbaneselskab
Infrastrukturejer: Den danske stat
Motivdato: 1881
Delsamling: Ulrik T. Jensens samling
Scannummer: RFB-Faaborg-varehus-scan531

Kilde: Danmarks Jernbanemuseum - Dato: 1881 - LINK til kilde.
Noter til: Tegning af Faaborg Stations varehus.
Transportselskab/ operatør: Ringe - Faaborg Banen (RFB)
Jernbanested: Fåborg
Navneændringer: Før 02.06.1957 Faaborg.
På strækningen: Ringe - Fåborg
Beskrivelse: Varehus.
Infrastrukturforvalter: Det sydfyenske Jernbaneselskab
Infrastrukturejer: Den danske stat
Motivdato: 1881
Delsamling: Ulrik T. Jensens samling
Scannummer: RFB-Faaborg-varehus-scan656

Kilde: Danmarks Jernbanemuseum - Dato: 11. okt. 1954 - LINK til kilde.
Noter til: Tegning af Faaborg Station.
Transportselskab/ operatør: Danske Statsbaner (DSB)
Jernbanested: Fåborg
Navneændringer: Før 02.06.1957 Faaborg.
På strækningen: Ringe - Fåborg
Beskrivelse: Ombygning af varehus.
Infrastrukturejer: Danske Statsbaner
Motivdato: 11. okt. 1954
Fotograf/ billedkunstner: ukendt
Delsamling: Ulrik T. Jensens samling
Scannummer: SFJ-Faaborg-varehus-DSBtg-scan28276
Sporplan fra Faaborg Station

Kilde: Danmarks Jernbanemuseum - Dato: 1880 - LINK til kilde.
Noter til: Sporplan af Faaborg Station.
Transportselskab/ operatør: Ringe - Faaborg Banen (RFB)
Jernbanested: Fåborg
Navneændringer: Før 02.06.1957 Faaborg.
På strækningen: Ringe - Fåborg
Beskrivelse: Plan over stationen.
Infrastrukturforvalter: Det sydfyenske Jernbaneselskab
Infrastrukturejer: Den danske stat
Motivdato: 1880
Anslået motivdato: ca. 1880
Delsamling: Ulrik T. Jensens samling
Scannummer: RFB-Faaborg-stationsplan-scan654

Kilde: Danmarks Jernbanemuseum - Dato: 1880 - LINK til kilde.
Noter til: Sporplan af Faaborg Station.
Transportselskab/ operatør: Ringe - Faaborg Banen (RFB)
Jernbanested: Fåborg
Navneændringer: Før 02.06.1957 Faaborg.
På strækningen: Ringe - Fåborg
Beskrivelse: Plan over stationen.
Infrastrukturforvalter: Det sydfyenske Jernbaneselskab
Infrastrukturejer: Den danske stat
Motivdato: 1880
Anslået motivdato: ca. 1880
Delsamling: Ulrik T. Jensens samling
Scannummer: RFB-Faaborg-stationsplan-1882-scan657
Google Street View af Faaborg Station
Kilde: © Street View, by Google Maps - Dato: den 23. december 2021 - LINK til kilde.
Kort over Faaborg Station

Kort over Faaborg Station - Kilde: Indeholder data fra Styrelsen for Dataforsyning og Effektivisering, skærmkortet, WMS-tjeneste via datafordeler.dk (Ortofoto forår)

Kort over Faaborg Station - Kilde: Indeholder data fra Styrelsen for Dataforsyning og Effektivisering, skærmkortet, WMS-tjeneste via datafordeler.dk (Ortofoto forår)

Kort over Faaborg Station - Kilde: Indeholder data fra Styrelsen for Dataforsyning og Effektivisering, skærmkortet, WMS-tjeneste via datafordeler.dk (Topgrafisk kort 1980-2001)

Kort over Faaborg Station - Kilde: Indeholder data fra Styrelsen for Dataforsyning og Effektivisering, skærmkortet, WMS-tjeneste via datafordeler.dk (Topografisk kort 1953-1976)

Kort over Faaborg Station - Kilde: Indeholder data fra Styrelsen for Dataforsyning og Effektivisering, skærmkortet, WMS-tjeneste via datafordeler.dk (Lave Målebordsblade 1901-1971)
Litteratur for: Faaborg Station
![]() | Bogtitel Forfatter Udgivelsesår Sidetal Udgivelsessted Forlag ISBN | Dansk jernbanehistorie 2 Torben Andersen 2005 80 Lokomotivet 87-90-779-05-3 |
![]() | Bogtitel Forfatter Udgivelsesår Sidetal Udgivelsessted Forlag ISBN | Danske Jernbanefærger Niels Jensen 1978 96 Clausens jernbanebibliotek 87-11-03875-6 |
![]() | Bogtitel Forfatter Udgivelsesår Sidetal Udgivelsessted Forlag ISBN | Fynske jernbaner Niels Jensen 1976 112 København J. Fr. Clausen 87-11-03736-9 |
![]() | Bogtitel Forfatter Udgivelsesår Sidetal Udgivelsessted Forlag ISBN | Nyborg-Ringe-Fåborg banen : med et afsnit om færgeoverfarten Fåborg-Mommark Lars Viinholt-Nielsen 1981 231 Odense Odense Universitetsforlag 8774923552 |
![]() | Bogtitel Forfatter Udgivelsesår Sidetal Udgivelsessted Forlag ISBN | Odense-Nr. Broby-Fåborg banen Lars Viinholt-Nielsen 1993 128 Århus SFJ-bøger 87-984810-0-2 |
![]() | Bogtitel Forfatter Udgivelsesår Sidetal Udgivelsessted Forlag ISBN | Svendborg-Fåborg Banen Lars Viinholt-Nielsen 1995 96 Århus SFJ-bøger 87-984810-1-0 |
![]() | Bogtitel Forfatter Udgivelsesår Sidetal Udgivelsessted Forlag ISBN | Sydfyenske Jernbaners Rullende Materiel Lars Viinholt-Nielsen 2016 144 Bane Bøger 9788791434471 |






